Sikeresen feliratkozott a hirlevelünkre!
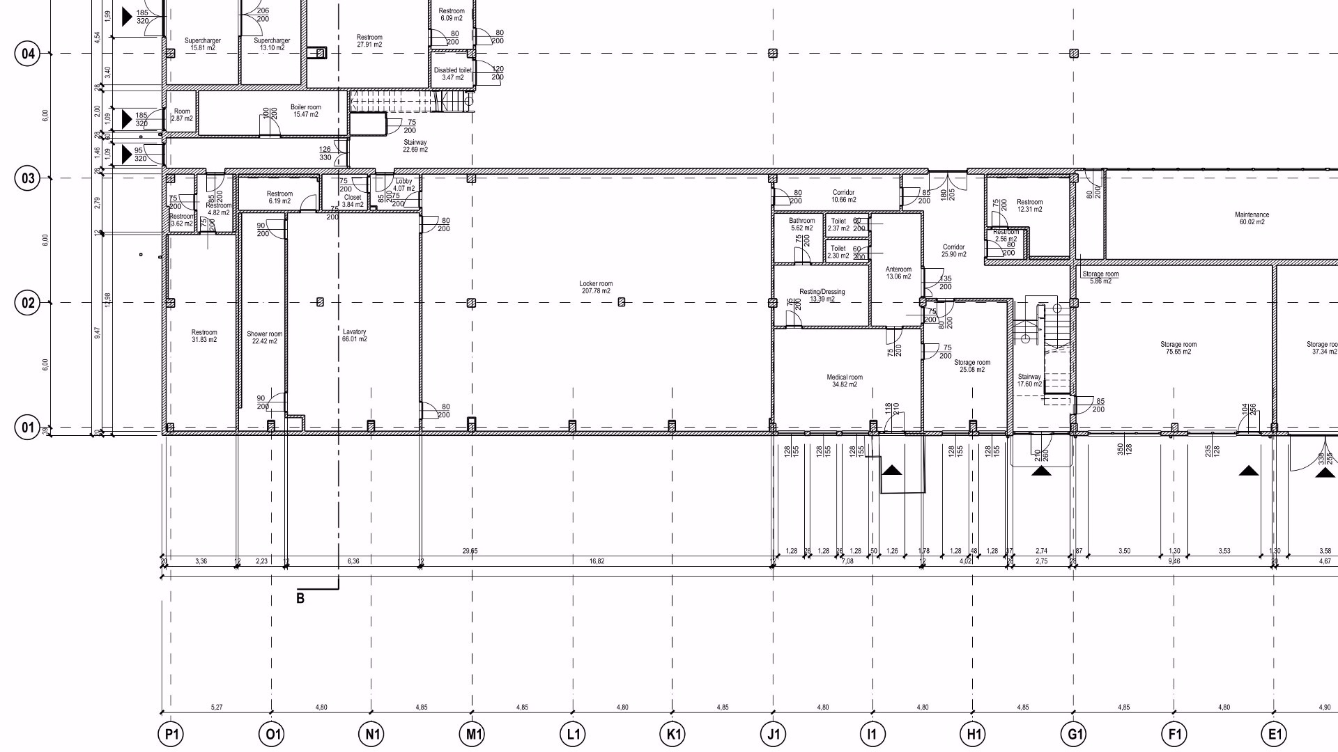
Veraltete, ungenaue oder fehlende Pläne können Ihre Arbeit erschweren und verlangsamen.
Verwenden Sie die OCUPLAN 2D Grundrisse, Fassadenansichten und Schnitte damit Sie nie wieder mit diesen gängigen Problemen konfrontiert werden.
Verfügbar 1:100, 1:50, 1:20
OCUPLAN DIVISION BURKEN GMBH
H-1037 Budapest, Bokor Strasse 10, Ungarn
+36 1 415 0220
3d@ocuplan.com